福建省福州市仓山区建新镇建新北路地铁栖江元璟
福州地铁·栖江元璟:重塑金山低密墅居新标杆
在福州楼市改善需求日益旺盛的背景下,福州地铁置业有限公司依托自身TOD开发优势,在金山板块打造了首个住宅项目——地铁·栖江元璟。这一项目以 “1.2超低容积率” 和 “三线换乘交通枢纽” 为核心卖点,试图在都市繁华与静谧生活之间找到平衡点,为福州改善型家庭提供全新的居住选择。
项目定位与开发背景
作为福州地铁置业进军商品房市场的开山之作,栖江元璟承担着树立品牌形象的重要使命。该项目是福州地铁置业在2024年11月以6.64亿元成功竞得的仓山区2024-56号地块,位于建新北路与闽江大道交叉口南侧,总面积约50亩。
值得一提的是,2025年10月,福州地铁置业注册资本从3亿元增至18亿元,增幅达5倍,展现了母公司对地产开发业务的强力支持,为项目顺利建设交付提供了坚实保障。
产品设计的创新之处
栖江元璟在产品设计上展现出诸多创新亮点。项目规划了20栋住宅,包括10栋8-9层的洋房和10栋4层的别墅,总计仅约244套房源,这种低密度规划在金山板块堪称稀缺。
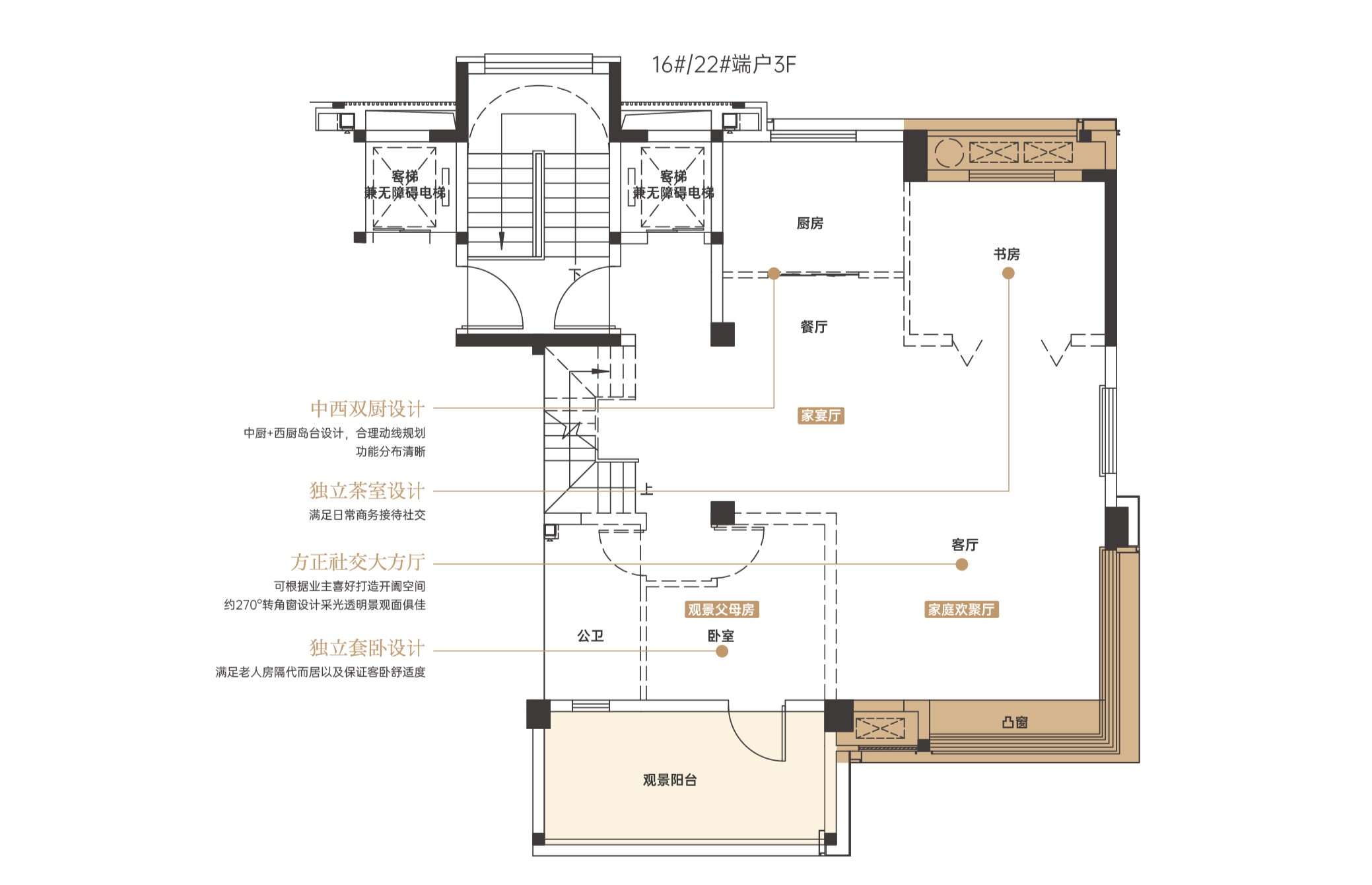
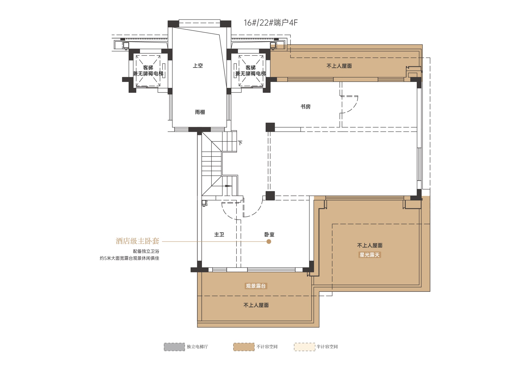
叠拼产品的革新是项目一大亮点。栖江元璟打破了传统叠拼格局,创新性地取消了中叠,只保留上叠(约169㎡)和下叠(约178㎡)产品。这种设计不仅避免了传统叠拼中中叠客厅与下叠卧室相连带来的相互干扰问题,还使每户都拥有独立电梯入户和地下使用空间,大大提升了居住的私密性和舒适度。
在洋房产品方面,项目打造了125-149㎡的“独梯独户”户型。125㎡户型实现了南向四开间,三房朝南一房朝北,餐客厅南北通透,空间使用率预计可达103%左右。149㎡户型则做出了近170㎡的空间感,采用4房+1房、3卫配置,满足改善家庭的多样化需求。
交通优势:TOD模式的核心价值
栖江元璟最大的亮点在于其无缝衔接的交通优势。项目紧邻已通车的地铁5号线阵坂站(距离不足100米)和4号线洪塘站(约500米),同时规划中的6号线西延线也将在此交汇,未来将形成三线换乘枢纽。
项目真正实现了TOD模式的核心价值——通过地下室直接连通地铁车站,业主可以体验从家门到地铁的 “无风雨出行” ,这在多雨的福州尤为实用。这一交通优势使居民能在十多分钟内直达鼓楼核心区,大大节约了通勤时间成本。据测算,1站可达山姆超市,2站到华润万象,4站到东街口,极大提升了生活便利度。
生态与配套资源
栖江元璟东侧紧邻闽江公园,步行约200米即可到达江畔,享有优质的生态休闲资源。周边还有农大沙滩公园、金山公园等生态绿地,为业主提供了丰富的自然休闲空间。
社区内部规划有下沉庭院及风雨连廊,并打造了约1300㎡的下沉式会所和1500㎡的架空层活动空间,涵盖了社交、休闲、健身、商务等多功能于一体,满足业主的高品质生活需求。
潜在考量与适合人群
任何项目都难以完美,栖江元璟也存在一些需要考虑的因素。项目位于金山板块外围,而非核心区域,周边缺乏大型步行可达的商业综合体,居民购物需依靠地铁出行或短途驾车前往成熟商圈。
教育配套方面,项目划片学校为金城小学(暂名),在该学校未建成前,业主子女可选择到仓山淮安实验小学或洪塘中心小学(淮安校区)过渡。与金山板块的传统名校相比,学区属性相对一般。
综合考虑项目特点,栖江元璟特别适合以下人群:
通勤依赖型家庭:在鼓楼、台江等工作,重视地铁出行效率的改善客群;
低密生活追求者:厌倦高密度社区,偏好宽松户型和静谧环境的购房者;
生态偏好型买家:重视日常公园休闲优于商业繁华的置业者。
福州地铁·栖江元璟凭借其1.2的超低容积率和三线换乘的交通优势,在金山板块打造了一个兼具出行便利与低密生活的新型社区。项目通过创新叠拼设计和合理的户型规划,为改善型家庭提供了新的选择。
作为福州地铁置业的首个商品房项目,其最终品质能否达到宣传效果,尚需时间验证。但对于追求低密度生活和交通便利的改善型购房者而言,栖江元璟无疑是一个值得重点关注的选择。
感兴趣的朋友可拨打售楼部电话细致了解,往常拨打电话预定看房还能享用有房子专属优惠,一站式买房温馨体验!
更多买房优惠/资讯关注有房子房产网,持续更新中!
【售楼部电话:4007729886 转 3459 来电,或点击报名立享专属优惠,并享用一对一效劳,可提供专车看房】

